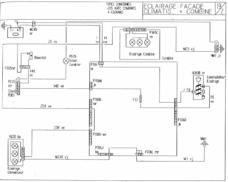
Alors voici mon soucils, je n'es plus d'éclairage de fonds de compteurs quand j'allume mes feux? alors j'ai testé quelques nouvelles ampoules mes sa n'a rien changer, alors j'ai testé un nouveau bloc compteur (où le compte tours ne marche plus
Alors ma question est la suivante, es possible d' interchanger juste le circuit imprimé d'un bloc a l'autre?



